Skip To Content

105 Lancaster Boulevard

Bluffton, SC 29909
  • $1,799,388
  • STATUS: Active
  • ON SITE: 51 Days
  • MLS #: 503373
$1,799,388
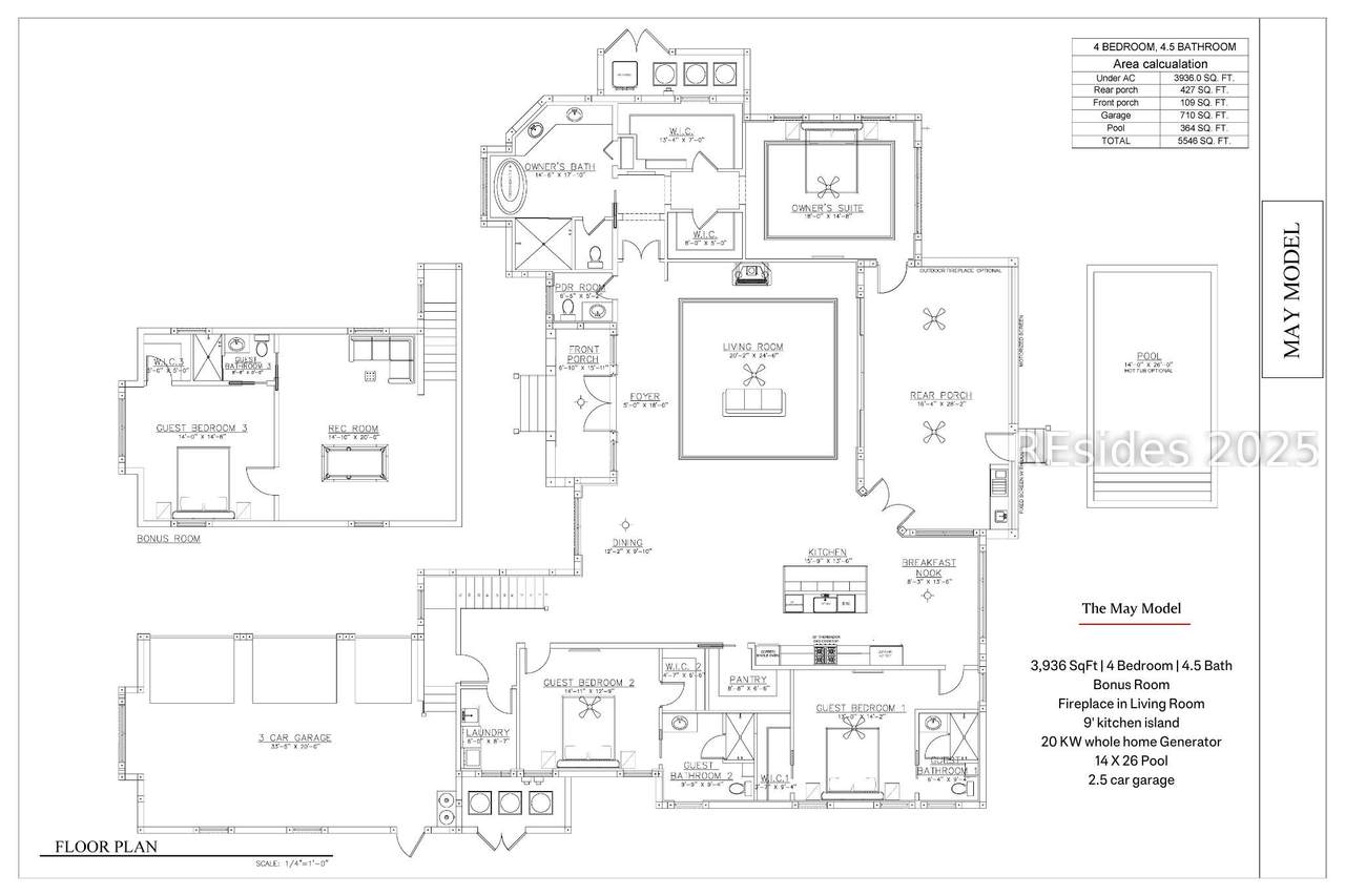
  • 4
    BEDS
  • 0.46
    ACRES
  • 4
    BATHS
  • 1
    1/2 BATHS
  • 3,742
    SQFT
  • $481
    $/SQFT
Neighborhood:
Type:
Single-Family Home
Built:
2026
County:

School Ratings & Info

Description

Set within the gates of Berkeley Hall, one of the most prestigious and exclusive private communities in the Lowcountry, this proposed construction opportunity offers an extraordinary chance to create a truly custom luxury residence. Berkeley Hall is renowned for its world-class amenities, championship golf, and refined lifestyle - where sophistication, relaxation, and privilege come together in a setting that is unmatched in our area. This home will be expertly built by May Residential Builders, a premier luxury builder known for superior craftsmanship, exceptional design, and uncompromising durability. Their homes are engineered to the highest standards, including 180 mph hurricane-rated construction, utilizing top-of-the-line materials that deliver both beauty and long-term resilience. May Residential Builders is a recent Lighthouse Award winner, recognized for Best Exterior and Best Kitchen, along with Second Place for Interior Design - a reflection of their meticulous attention to detail and elevated design aesthetic. The featured May model being showcased on this homesite offers over 3,700 square feet of thoughtfully designed living space with four bedrooms and four-and-a-half baths, blending open-concept living with elegant private retreats. This plan is designed to maximize functionality, comfort, and luxury; however, one of the most compelling aspects of this offering is the ability to fully customize. Buyers may tailor the floor plan, finishes, and architectural details to create a residence that perfectly reflects their personal vision and lifestyle. From energy-efficient construction to high-end finishes and timeless architectural design, May Residential Builders is known for delivering homes that are both luxurious and highly efficient. This is a rare opportunity to design and build a custom home from the ground up in one of the most desirable communities in the Southeast, guided by a builder whose reputation for excellence is well established

Monthly Payment Calculator



REsides, Inc logo We do not attempt to independently verify the currency, completeness, accuracy or authenticity of the data contained herein. All area measurements and calculations are approximate and should be independently verified. Data may be subject to transcription and transmission errors. Accordingly, the data is provided on an “as is” “as available” basis only and may not reflect all real estate activity in the market”. © 2026 REsides, Inc. All rights reserved. Certain information contained herein is derived from information, which is the licensed property of, and copyrighted by, REsides, Inc. Data last updated 2026-02-06T23:58:09.16.
www.debrahutton.com/homes/171450969
Print Image

105 Lancaster Boulevard Bluffton, SC 29909

  • Price: $1,799,388
  • Status: Active
  • On Site: 51 Days
  • MLS #: 503373
4
Beds
4
Baths
1
½ Baths
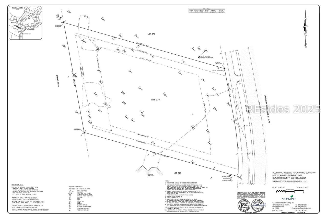
0.46
Acres
3,742
SQFT
$481
$/SQFT
2026
Built
Neighborhood:
Berkeley Hall I & II
County:
Beaufort
Area:
Berkeley Hall
Property Description
Set within the gates of Berkeley Hall, one of the most prestigious and exclusive private communities in the Lowcountry, this proposed construction opportunity offers an extraordinary chance to create a truly custom luxury residence. Berkeley Hall is renowned for its world-class amenities, championship golf, and refined lifestyle - where sophistication, relaxation, and privilege come together in a setting that is unmatched in our area. This home will be expertly built by May Residential Builders, a premier luxury builder known for superior craftsmanship, exceptional design, and uncompromising durability. Their homes are engineered to the highest standards, including 180 mph hurricane-rated construction, utilizing top-of-the-line materials that deliver both beauty and long-term resilience. May Residential Builders is a recent Lighthouse Award winner, recognized for Best Exterior and Best Kitchen, along with Second Place for Interior Design - a reflection of their meticulous attention to detail and elevated design aesthetic. The featured May model being showcased on this homesite offers over 3,700 square feet of thoughtfully designed living space with four bedrooms and four-and-a-half baths, blending open-concept living with elegant private retreats. This plan is designed to maximize functionality, comfort, and luxury; however, one of the most compelling aspects of this offering is the ability to fully customize. Buyers may tailor the floor plan, finishes, and architectural details to create a residence that perfectly reflects their personal vision and lifestyle. From energy-efficient construction to high-end finishes and timeless architectural design, May Residential Builders is known for delivering homes that are both luxurious and highly efficient. This is a rare opportunity to design and build a custom home from the ground up in one of the most desirable communities in the Southeast, guided by a builder whose reputation for excellence is well established
Exterior Features

Architectural Style Two Story Construction Materials Block Composite Siding Concrete Exterior Features Enclosed Porch Sprinkler / Irrigation Propane Tank - Owned Paved Driveway Porch Propane Tank - Leased Patio Storm / Security Shutters Outdoor Grill Garage YN Yes Parking Features Driveway Garage Two Car Garage Golf Cart Garage Patio And Porch Features Rear Porch Patio Porch Screened Pool Features Community Roof Asphalt View Trees / Woods View YN Yes

Interior Features

Appliances Dryer Dishwasher Disposal Microwave Oven Range Refrigerator Washer Tankless Water Heater Cooling Central Air Heat Pump Cooling YN Yes Fireplace Features Outside Furnished Unfurnished Heating Heat Pump Interior Features Ceiling Fan(s) Fireplace Main Level Primary Multiple Closets Smooth Ceilings Pantry Rooms Pantry Laundry Kitchen Great Room Garage Dining Room Primary Bedroom (First Level) Bonus Room Window Features Other Screens Storm Window(s)

Property Features

Association Amenities Bocce Court Clubhouse Dock Dog Park Fitness Center Golf Course Playground Pickleball Pool Restaurant Guard Spa / Hot Tub Tennis Court(s) Trail(s) Builder Model May Green Energy Efficient Insulation Water Heater Listing Terms Cash Conventional Lot Features 1 /4 to 1 /2 Acre Lot Property Sub Type Single Family Residence Property Sub Type Additional Single Family Residence Special Listing Conditions None Water Source Public

REsides, Inc.
Listing provided courtesy by Maxey Blackstream Christie's International Real Estate (898): 864-553-1998.


REsides, Inc logo We do not attempt to independently verify the currency, completeness, accuracy or authenticity of the data contained herein. All area measurements and calculations are approximate and should be independently verified. Data may be subject to transcription and transmission errors. Accordingly, the data is provided on an “as is” “as available” basis only and may not reflect all real estate activity in the market”. © 2026 REsides, Inc. All rights reserved. Certain information contained herein is derived from information, which is the licensed property of, and copyrighted by, REsides, Inc. Data last updated 2026-02-06T23:58:09.16.
 
https://bt-photos.global.ssl.fastly.net/hhimls/1280_boomver_2_503373-2.jpg https://bt-photos.global.ssl.fastly.net/hhimls/1280_boomver_2_503373-2.jpg https://bt-photos.global.ssl.fastly.net/hhimls/1280_boomver_2_503373-2.jpg
Logo
Debra Hutton | COAST brokered by eXp
81 Pope Ave
Hilton Head Island SC, 29928